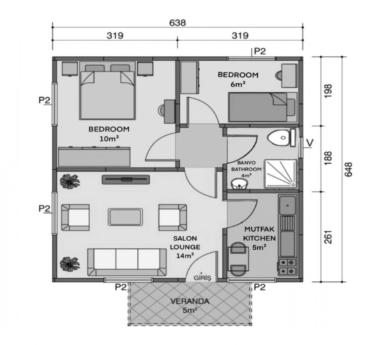
Kullanım Alanı: 43m²
Geniş dört veya üç yatak odalı aile evleri, açık plan oturma alanları, en-suite banyolu yatak odaları ve yemek alanı olan büyük bir mutfak sunar. Üst kattaki balkonlar, evin iki tarafındaki terasları gölgede tutar.
Kusursuz İç Mekan Tasarımı
Bu mülk, gerçek taş zemin kaplamaları, zarif iç dekor, İtalyan ilhamlı mutfaklar ve Alman banyoları ile sıhhi tesisat ürünleriyle birçok benzersiz kaplama özelliğine sahiptir. Tam donanımlı tasarım mutfak, kuvars tezgahlar ve şık, cilalı dolaplarla donatılmıştır.
Arka Plan Özellikler
Yoğun yalıtımlı duvarlar, güneş kontrolü sağlayan sert cam, sağlam çelik çerçeveli yapı ve enerji tasarrufu sağlayan karmaşık inşaat teknikleri, işletme maliyetlerini en aza indirmek ve konforlu, uzun ömürlü bir yapı sağlamak için tasarlanmıştır.
Modüler Performans
Fabrika yapımı modüler yapı, kalite ve maliyet kesinliği sağlar ve tam tasarım esnekliği sunar. Bu çekici bina, çoğu uygulama için özelleştirilebilir. Tatil evi veya tatil kiralama yatırımı için ideal, geniş ve cazip bir konut sağlar.
Esneklik
Tüm MuttinyHouse evleri, yerleşik mutfak dolapları, yüksek kaliteli sıhhi tesisat ürünleri ve çeşitli duvar ve zemin kaplamaları içeren tam bir iç dekorasyon paketi ile sunulur. Müşteriler, evlerini kişiselleştirmek için geniş bir kaplama, zemin, mutfak dolapları ve banyo seçeneğinden faydalanabilir ve iç tasarım ekibimiz yardım ve öneriler sunmak için hazırdır.




