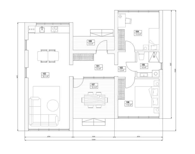
Arcadia, MuttinyHouse tarafından inşa edilen modern bir panel yapılı evdir. Bu ev, iki yatak odası ve bir banyo ile geniş bir yaşam alanı sunar. 100,3 m²’lik alanıyla konforlu bir yaşam alanı sağlar.
Genel Bakış:
- Yatak Odaları: 2
- Banyo: 1
- Alan: 100,3 m²
Teknik Açıklama:
- Dış Kaplama: Metal paneller ve ladin kaplama tahtaları (isteğe bağlı renk ve doku)
- İç Kaplama: Ladin kaplama tahtaları (isteğe bağlı renk ve doku) veya alçıpan
- Zemin: Laminat parke (Sınıf 33); banyo – vinil kaplama
- Yalıtım: 200 mm taşyünü duvarlar, 250 mm taşyünü zemin, 250 mm taşyünü tavan
- Pencereler: Üçlü camlı PVC pencereler
- Kapılar: Tüm kapılar dahil
- Çatı: PVC su izolasyonlu yeni nesil çatı
- Diğer: Elektrik tesisatı, su temini ve kanalizasyon; ev düzenini değiştirme seçeneği
Sonuç:
Arcadia, modern tasarımı ve geniş yaşam alanıyla konforlu bir yaşam sunar. Letonya merkezli IlumHouse tarafından üretilen bu panel yapılı ev, yüksek enerji verimliliği ve özelleştirme seçenekleriyle dikkat çeker. Detaylı bilgi ve kişisel talepleriniz için bizimle iletişime geçebilirsiniz.






